Saint-Gilles-Croix-de-Vie (85800) "HORIZON 4" Programme neuf d'une maison de 83.10 m2
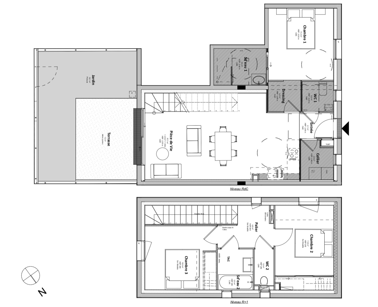
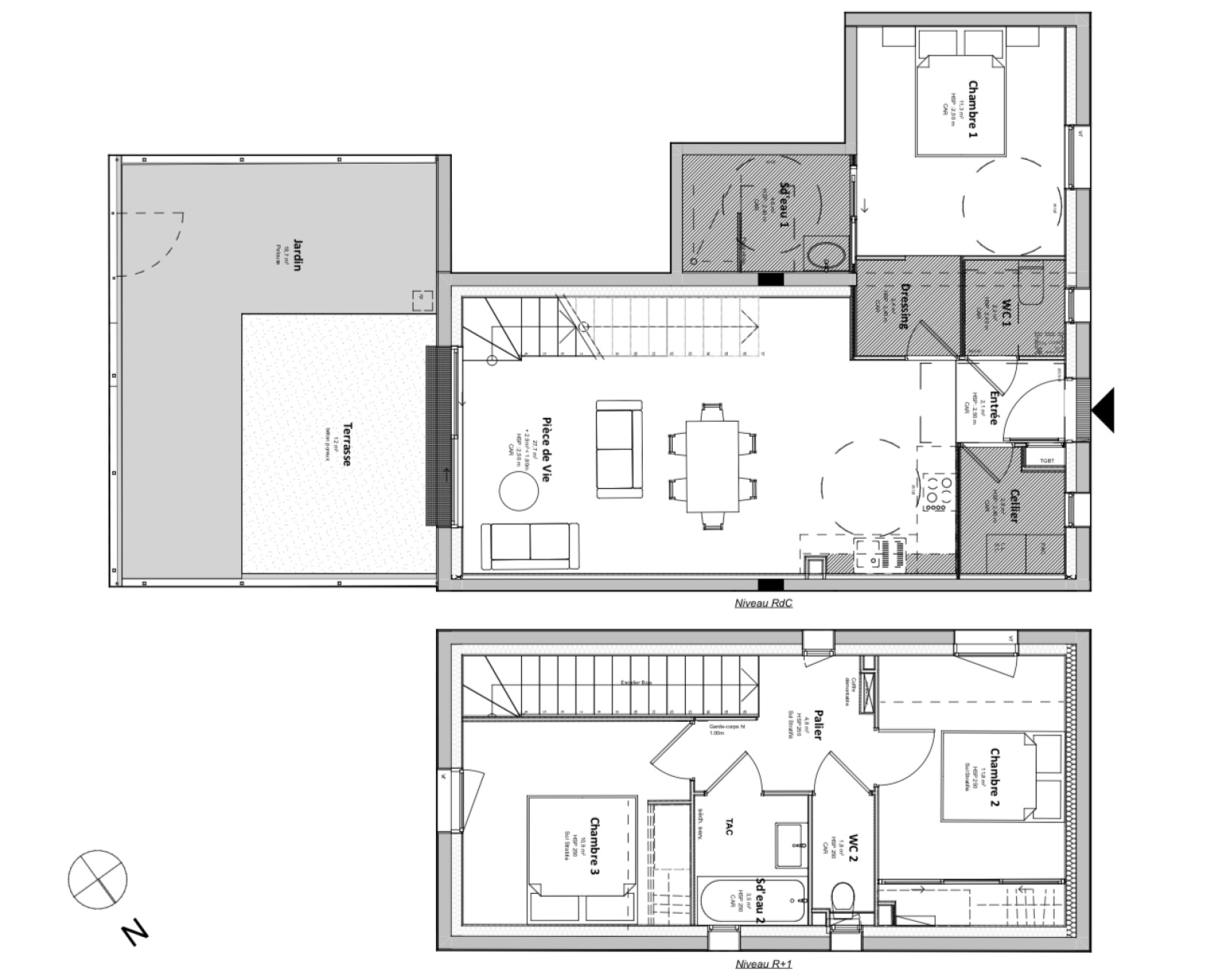
L'abri Côtier vous propose "HORIZON 4", un programme neuf pour cette maison de 83.10 m² livrable au 1er semestre 2027.
Elle se compose en rez-de-jardin d'une entrée, un séjour avec cuisine (non équipée), un cellier, une suite parentale, wc séparé.
À l'étage : un palier desservant deux chambres, une salle d'eau et un wc séparé.
Cette maison dispose d'un jardin clos de 19 m², d'une terrasse de 12 m², d'un rangement vélos ainsi que de 2 places de parking.
Emplacement privilégié à proximité immédiate des dunes, de la grande plage et du centre-ville de Saint-Gilles.
Très fonctionnelle, cette maison bénéficie d'un équipement de standing (chauffage au sol, volets roulants électriques) et d'une finition soignée (carrelage dans les sanitaires, menuiseries de qualité).
Normes RE 2020 et PMR - dossier complet sur demande - produit rare sur le secteur !
Les informations sur les risques auxquels ce bien est exposé sont disponibles sur le site Géorisques : www.georisques.gouv.fr
Les informations recueillies sur ce formulaire sont enregistrées dans un fichier informatisé par La Boite Immo agissant comme Sous-traitant du traitement pour la gestion de la clientèle/prospects de l'Agence / du Réseau qui reste Responsable du Traitement de vos Données personnelles.
La base légale du traitement repose sur l’intérêt légitime de l'Agence / du Réseau.
Elles sont conservées jusqu'à demande de suppression et sont destinées à l'Agence / au Réseau.
Conformément à la loi « informatique et libertés », vous pouvez exercer votre droit d'accès aux données vous concernant et les faire rectifier en contactant l'Agence / le Réseau.
Si vous estimez, après avoir contacté l'Agence / le Réseau, que vos droits « Informatique et Libertés » ne sont pas respectés, vous pouvez adresser une réclamation à la CNIL.
Nous vous informons de l’existence de la liste d'opposition au démarchage téléphonique « Bloctel », sur laquelle vous pouvez vous inscrire ici : https://www.bloctel.gouv.fr
Dans le cadre de la protection des Données personnelles, nous vous invitons à ne pas inscrire de Données sensibles dans le champ de saisie libre
Ce site est protégé par reCAPTCHA, les Politiques de Confidentialité et les Conditions d'Utilisation de Google s'appliquent.
Détails des diagnostics énergétiques
